Телескопический подъемник ELEVAH PKS 920
Доставка:
Самовывоз с 9:00 до 17:00
Приобретение в лизинг:
Нет
Возможна аренда:
Нет
Гарантия:
12 месяцев
Основные характеристики
Грузоподъемность:
0.200 т
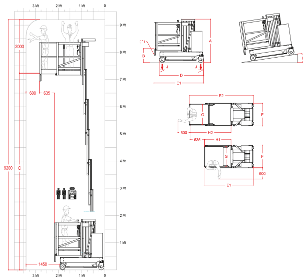
Рабочая высота:
9.20 м
Двигатель:
Электрический
Максимальная рабочая нагрузка:
200 кг
Количество человек:
2
Производитель:
Страна:
Италия
Купить
Подъемник телескопический для двух операторов с г/п 200 кг и в/п 9,2 м. Подемник имеет систему VRS(Vibration reduction system) – с 12-ю регулируемыми колесами, которая отвечает за максимальную стабильность платформы на высоте и отсутствие эффекта раскачивания.













