Самоходный электроштабелер CDD20M, г/п 2000 кг, в/п 4500 мм

Доставка: 

Условия доставки по РБ

Самовывоз с 9:00 до 17:00

Возможна аренда: 
Нет
Гарантия: 
1 год

Основные характеристики

Вид: 
Электрический
Конструкция: 
Фиксированные вилы
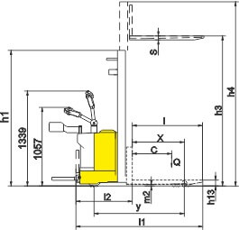
Грузоподъемность: 
2 000 кг
Радиус поворота: 
1 629 мм
Максимальная высота : 
4 500 мм
Высота вил в нижнем положении: 
90 мм
Материал колес: 
Нейлон
Производитель: 
Страна: 
КНР (Китай)

Снят с производства.
Модель с откидной платформой и фиксируемыми вилами.